Espace propriétaire
fr
Descriptif de ce bien

Opportunité Saisissante au Marin : Votre T2 Neuf idéalement situé

ACS IMMOBILIERS vous propose de découvrir "Les Terrasses du Marin", un programme immobilier neuf situé au cœur du quartier Mondésir au Marin. Ce projet allie modernité, confort et sérénité dans un cadre de vie privilégié à proximité immédiate de la Marina du Marin, idéal pour un premier achat ou pour un investissement locatif stratégique. Accédez facilement à pied ou en quelques minutes aux commerces, services de santé, écoles et axes routiers principaux.

Composé de deux immeubles élégants, le programme propose 17 logements de standing, allant du T2 au T4. Chaque appartement a été pensé pour votre bien-être.

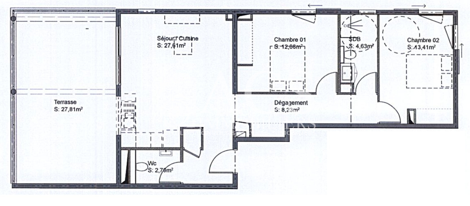
Pour un prix de 388 500€, cet appartement T3 de 69,35 m² situé au 1er étage (R+1) du Bâtiment A est conçu pour ceux qui recherchent de l'espace et une véritable espace de vie en extérieur avec sa terrasse de 27,81m². Il comprend un spacieux séjour avec espace cuisine ouverte, deux chambres, une salle d’eau, un WC indépendant et un dégagement.
Bonus Inclus : Une cave individuelle de 6,91 m², idéale pour le stockage ainsi que deux places de parking privative.

Avantages du neuf : Frais de mutation réduits, exonération de taxe foncière pendant 2 ans et dispositif de défiscalisation (crédits d’impôts outre-mer).

Livraison : dernier trimestre 2026

L'agence immobilière ACS IMMOBILIERS est idéale pour acheter ou vendre des programmes neuf sur le Marin. Spécialisée dans la vente de programme neuf au Marin, elle diffuse quotidiennement ses annonces immobilières afin de faciliter la vente de votre programme neuf au Marin.

Les informations sur les risques auxquels ce bien est exposé sont disponibles sur le site Géorisques http://www.georisques.gouv.fr

Agent commercial enregistré - No de gestion: 792 402 976
Pour plus de renseignements veuillez contacter Manjua NOSSIN EI au 0696 38 63 92 ou manjua.nossin@acs-immobiliers.com


Général
Code postal 97290
Surface loi Carrez (m²) 69,35 m²
Nombre de chambre(s) 2
Nombre de pièces 3
Etage 2
Ascenseur OUI
Détails
Nb de salle d'eau 1
Terrasse OUI
Cave OUI
Surface cave (m²) 6
Composition
Etage 2
chambre 12.68 m²

Séjour/Cuisine 27.61 m²

chambre 13.41 m²

Dégagement 8.23 m²

salle d'eau 4.63 m²

WC 2.79 m²

terrasse 27.81 m²

Rez de chaussée
cave 6.91 m²

Financier
Prix de vente honoraires TTC inclus 388 500 €
Quartier
  • Commerces et santé
  • Loisirs
  • Ecoles
  • Transports
  • Pratique
Energie
DPE GES
Contacter pour ce bien
L'agence
Téléphone 05 96 02 03 32
Adresse
Rue Cha Cha, Immeuble Sardine, Pointe du Bout 97229 Les Trois-Îlets

* Champ obligatoire

Les informations recueillies sur ce formulaire sont enregistrées dans un fichier informatisé par La Boite Immo agissant comme Sous-traitant du traitement pour la gestion de la clientèle/prospects de l'Agence / du Réseau qui reste Responsable du Traitement de vos Données personnelles. La base légale du traitement repose sur l'intérêt légitime de l'Agence / du Réseau. Elles sont conservées jusqu'à demande de suppression et sont destinées à l'Agence / au Réseau. Conformément à la loi « informatique et libertés », vous disposez des droits d’accès, de rectification, d’effacement, d’opposition, de limitation et de portabilité de vos données. Vous pouvez retirer votre consentement à tout moment en contactant directement l’Agence / Le Réseau. Consultez le site https://cnil.fr/fr pour plus d’informations sur vos droits. Si vous estimez, après avoir contacté l'Agence / le Réseau, que vos droits « Informatique et Libertés » ne sont pas respectés, vous pouvez adresser une réclamation à la CNIL. Nous vous informons de l’existence de la liste d'opposition au démarchage téléphonique « Bloctel », sur laquelle vous pouvez vous inscrire ici : https://www.bloctel.gouv.fr Dans le cadre de la protection des Données personnelles, nous vous invitons à ne pas inscrire de Données sensibles dans le champ de saisie libre.
Ce site est protégé par reCAPTCHA, les Politiques de Confidentialité et les Conditions d'Utilisation de Google s'appliquent.

Découvrir nos outils